Deboche Nunnery Convent Destroyed by Earthquake

Please enjoy the video of Water for the Anis Video Made by Justin Dickinson: Click Here 
Please enjoy this Squash Falconer video of Deboche Nunnery Project: Click Here
Click here to donate financially. We also encourage you to join our service trek, donate clothing, equipment and supplies. Thank you: The local people need your donations by cheque and also online using your credit card.

The DebocheProject
Annual Board Meeting
1.
- PROJECT VETTED
- AWB TEAM FORMS
- COMMUNITY SURVEY FUNDED BY SPONSOR
- PROJECT RESEARCH BEGINS
- FALL: ANDREA & COREY VISIT & PHOTO DOCUMENT DEBOCHE
2.
- AWB PROJECT CHARETTE
- MASTER PLAN
- DESIGN DEVELOPMENT
- SPONSOR TEAM BEGINS SUBMITTING GRANT APPLICATIONS USING AWB DESIGNS/ RESEARCH
- LAURA TRAVELS TO
3.
EARTHQUAKE & IMPACTS
- NUNNERY IS DAMAGED!
- NUNS TEMPORARILY MOVE TO NEARBY HOUSING
- CONSTRUCTION COSTS SIGNIFICANTLY INCREASE, INFLATING PROJECT BUDGET
- PROJECT SCOPE IS REDUCED.
- REDESIGN BEGINS
- FUNDRAISING TEMPORARILY ON HOLD WHILE DONORS DIRECT FUNDING TOWARD EARTHQUAKE VICTIMS & RECONSTRUCTION.
4.
- LOCAL RECONSTRUCTION WORK ON NUNNERY CONTINUES
- GRANTS CONTINUE TO LAG DUE TO EARTHQUAKE IMPACTS
- SPONSOR HIRES NEPAL STRUCTURAL ENGINEER
- FOCUS ON STRUCTURAL OPTIONS/ PROJECT COSTS
- JOE VISITS DEBOCHE ON WAY TO EBC PROJECT
5.
- PEMA CHODRON FOUNDATION DONATES $50,000!
- LAURA TRAVELS TO DEBOCHE WITH SPONSOR TEAM
- JUNE: CONSTRUCTION BEGINS!
- END OF OCTOBER: BUILDING SHELL IS ENCLOSED FOR THE WINTER. PROJECT PLACED ON HOLD DURING COLD SEASON
- FUNDRAISING CONTINUES
6.
- JUNE: CONSTRUCTION STARTS BACK UP. FOCUS ON INTERIOR FINISHES, STOVES, CABINETRY, ETC…
- PEMA CHODRON FOUNDATION DONATES ANOTHER $25,000! ADDITIONAL FUNDRAISING CONTINUES.
- NUNS BEGIN TO USE “FINISHED” COMMUNITY ROOM IN NEW BUILDING!
- CONSTRUCTION TO CONTINUES INTO FALL













THE DEBOCHE PROJECT REPORT: 1 June

Deboche convent almost done. Deboche convent from distance angle. Photo by. Minga Sherpa

Deboche convent under construction. Photo bye. Mingma Sherpa

Deboche convent under construction. Photo bye. Mingma Sherpa Deboche nuns are infornt of Deboche. Photo bye. Mingma Sherpa

Progress on Deboche Project as of 29 Aurgust. Photo Mingma Sherpa
THE DEBOCHE PROJECT REPORT: 1 September
During a trek in the Everest region we came upon the historic Deboche convent. We found the nuns, many sick with respiratory infections, living in deplorable conditions. There was no running water, and no heat or sanitary facilities. Meals were cooked on a wood-burning stove made of soldered one-gallon oil cans. The nuns slept in small stone huts that suffered from leaking roofs, and their crumbling walls were inadequate to keep out the harsh weather of the high Himalayan mountains. Consequently, the Deboche Project was founded in 2006 with the help of the Mount Everest Foundation for Sustainable Development in Nepal. We are now a US tax-exempt 501(c) (3) non-profit public charity and a registered NGO in Nepal dedicated to restoring and preserving the oldest Buddhist convent in the Nepal Himalaya.
We are extremely excited to announce that construction has finally begun on the new nuns’ residence at Deboche. It has, indeed, been a long and tenuous journey... through challenging fundraising efforts, navigating the process of attaining non-profit status in both the US and Nepal, facing the devastating damage done by earthquakes, and coordinating the efforts of teams half a world away from each other. Mingma Tenzin, our Project coordinator, has been sending the photos you see here of workers shaping stone, carpenters hand hewing timbers, the foundation being dug out by hand, and the cement being poured. Our dream is finally becoming a reality. This reality is, in great measure, due to the incredible efforts of MIngma Tenzin and of Laura Rose and her design team at Architects Without Borders who have continually updated the designs and engineering plans required to meet the ever-changing and challenging demands of the harsh environment of the Everest region.

Construction materials are stored as they arrive on site. Work is complicated by the challenging weather. The carpentry shop is under cover
It may be difficult for some to imagine tackling a sizeable construction project when modern technology is not available. The new residence hall is being built with no power tools and without a single construction vehicle or earth moving machine. In the Khumbu region of Nepal where Deboche is located there are no roads, so the building site is inaccessible to heavy equipment

Harvesting sand for concrete on slopes prone to landslides. A worker forges metal stakes over a wood fire.
Transport of building materials is a fragile, choreographed effort in a season during which days are most often filled with fog and rain from the summer monsoon. Helicopters loaded with building supplies fly low beneath the clouds, which gives the pilots limited visibility before landing on a small airstrip above the Sherpa capital of Namache. From there every tool and all materials must be carried on the backs of porters through the challenging Himalayan ascents on treacherous, slippery terrain to their final destination at Deboche.
Upon arrival the lumber, bags of cement, tools, and steel and iron reinforcing bars must be secured under tarps for protection against the storms that continuously plague the high Himalaya. Shelters for the workers, dining tents and work spaces must be constructed. Just imagine 400 bags of cement being carried up thousands of feet of altitude on someone’s back, wrestling boulders weighing many tons by human power alone, harvesting bags of sand in dangerous landslide areas, and stone blocks having being hauled on back-boards to stone cutters who will shape three stones a day sitting under the dubious protection of a tarp strung between two trees.

Foundation wall in place with rebar. Stonecutters shape building stones. Each can produce about three stones a day
It is almost incomprehensible to our western minds that this monumental effort by a workforce of over 50 men will produce a building within 3 to 4 months. But when completed, this building with its eco-conscious design and the adaptation of seismic construction techniques will provide a safe, warm and protective shelter, a new kitchen and dining room, modern sanitary facilities and beautiful spaces for study and practice for both the resident nuns and those visiting from other convents. It will also provide a place to gather and celebrate Tibetan/Sherpa culture and Buddhist traditions for the people living within the Everest region. And most importantly, it will renew, revitalize and celebrate a special place realized long ago as one of the most sacred places in the Nepal Himalaya.
URGENT REQUEST FOR HELP FOR THE NUNS AT DEBOCHE
With the help of private donors, corporate funding and support from Architects Without Borders, Dan Mazur and the Mount Everest Foundation for Sustainable Development in Nepal, The Altruistic Odyssey and a most generous grant from the PemaChodron Foundation, we have been able to fund over 90% of the construction of the new building at Deboche. We are so very close to finishing this new building but need your help in completing this important project. Our time commitment to finishing on time is rapidly approaching and construction must be completed before the arrival of the region’s harsh winter storms.
Please visit our website: www.DebocheProject.org to learn more about our project, see the latest building plans, and make a much-needed tax-exempt donation to finish this phase of the project. On behalf of the Board of Directors, our Sherpa friends in the Khumbu, the village of Deboche and its surrounding neighbors and most importantly the Anis of the Deboche Convent, we are grateful for your kind consideration of this request.
=====================================================================================
The Deboche Convent is the oldest convent in the Mount Everest region and the nearest to Mount Everest.
New Construction Photos




Let The Deboche Convent Rebuilding Begin!









========================================================================================

Photo Credit: Joe Swain, Mingma Sherpa, and Mount Everest Foundation

Photo Credit: Joe Swain, Mingma Sherpa, and Mount Everest Foundation

Photo Credit: Joe Swain, Mingma Sherpa, and Mount Everest Foundation

Photo Credit: Joe Swain, Mingma Sherpa, and Mount Everest Foundation

Photo Credit: Joe Swain, Mingma Sherpa, and Mount Everest Foundation

Photo Credit: Joe Swain, Mingma Sherpa, and Mount Everest Foundation

Photo Credit: Joe Swain, Mingma Sherpa, and Mount Everest Foundation

Photo Credit: Joe Swain, Mingma Sherpa, and Mount Everest Foundation

Updated Deboche photos by Dan Mazur, 07 Nov.
Updated Deboche photos by Mingma Sherpa, 25 June.
.jpg)
.jpg)
.jpg)
.jpg)
.jpg)
Photos from Deboche Nunnery, which is damage by Earthquake hit on 25th April:
Ani Dolma, one of the Deboche Nuns, stands amid destruction in the main prayer hall. Women's dormitory with a blown out wall. Mount Thamserku in background
Water is still flowing well through the 1500 metre - mile long water line at Deboche Convent. Real wall of prayer hall with beams protruding through upper right hand corner.
Prayer hall entrance with main entry door now bowed out a half metre. North wall of the prayer hall seems to have somehow survived
Middle section of small house has dissappeared, with end cracks. Last few remains of Ani Nawang Pema's house where she meditated for 50 years before passing to the next life
Half of the toilet collapsed. East wall of prayer hall collapsed
Destroyed condition of the prayer benches in the prayer hall. Damaged small house with steel roofing harvested to patch other structures.
The Deboche convent is one of the oldest houses of Tibetan Buddhist worship in the Himalayas. It is located in the village of Deboche near the beautifully restored monastery of Tengboche in the Khumbu region of Nepal. For decades trekkers to the land of “the abode of the snows” have noted the beauty of the valley where Deboche is located. It has long been considered a "beyul" a spiritual sanctuary and protective valley watched over by powerful deities,. Weary climbers make it a habit to stop and greet the resident nuns, to share a cup of tea and receive blessings before they move forward on their journey. They are enchanted by the simple beauty of the place, but also aware of the nuns’ constant struggle to survive. They note that the beautiful buildings of the convent have begun to disintegrate and are in desperate need of repair. Yet, most continue on their way to summit heights and soon forget Deboche’s plights.
The Deboche team came about in 2006 in response to this call and has joined hands to restore and to update the convent for current residents and for a new generation of Tibetan Buddhist practitioners.
We envision a living museum of an authentic Buddhist culture and practice. We also see the place as a sanctuary of history for the local community where they can meet, practice and share the ancient and new wisdom of their rare, but significant world. The much needed infrastructure and construction of Phase II will give resident nuns a home that protects them from winter cold and the harsh environment of the Himalaya. It will also allow them to grow their community of nuns. Without such basic improvements, the Deboche convent shall not survive,
The founders of the Deboche Project; Mingma Tenzing Sherpa, Nepal-based Project Coordinator, Marcia Macdonald, Project Leader and Dan Mazur, a supporter of the Mount Everest Foundation for Sustainable Development in Nepal, recognize the importance of saving Deboche from the ravages of time and neglect. We have begun work and are continuously working on raising funds for basic improvements of installing water lines, providing sanitary facilities, adding new wood burning stoves and making repairs to roofs, windows and crumbing walls that serve as homes for the residents. To date, with limited private donations, the Deboche Project and its supporters have accomplished the following important capital improvements:
- Installed a 3 kilometer water line to the monastery and the nearby village
- Constructed two green houses to extend the growing season and to provide fresh vegetables for the nunnery and local residents
- Replaced and repaired damaged windows, walls, and roofs of the convent buildings
- Built two sanitary facilities with composting capacity
- Installed new seating mats for the shrine room
- Installed a new large cook stove for the kitchen and three small wood burning stoves in the nuns’ quarters
- The small kitchen/dining area has been insulated with plywood which also allow a limited number of residents to use the area for study and recreation
- Provided weather proofing and insulation for three of the nuns’ living quarters
- Have finished a Community Survey to identify needs and connections that will guide the development of the convent (a copy provided upon request )
- Recruited services by the Seattle-based Architects Without Borders for a plan to restore, upgrade and expand the overall infrastructure of the convent
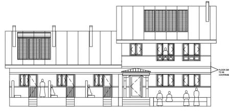
- Have received detailed designs, site analysis and construction perimeters for Phase I, the restoration of the Prayer Hall, Phase II, the nuns’ residence, and Phase III, the mediation/teaching center
- Have hired a respected teaching nun who serves as the lead monastic teacher for the convent
- Have received a detailed report by Mingma Tenzing Sherpa on our continuing efforts for the physical improvements of the convent.
- Created a visual diary of the Deboche Project and its importance to the survival of this area of the Himalaya
- Have produced two videos: ( YouTube , Big Umbrella, Deboche )and Dana Berenson Photography (sent on request)
- Are developing a plan for several levels of fund raising and sponsorships to bring the convent to the 21st century while restoring its fragile history
- Have identified Nepal based prospects for grass roots funding required to upgrade the physical facility and maintain the daily welfare of the nuns
- Have formulated a basis for a detailed budget for the renovation and construction of all Phases of restoration.
- Have engaged the services of a reputable General Construction Manager to oversee construction projects,
- Have filed for our own 501(c)(3) IRS tax exempt status
- Have submitted a pre-proposal for funding with the American Himalayan Foundation who is waiting further design and budget studies.
We envision Deboche to become a spiritual, social and economic resource for the community. While we do not want to overstate the importance of supporting female monastics, we realize that a convent can offer local families a place to practice, teach, learn and connect in new ways to offset the isolation of this beautiful part of the world. The Dalai Lama speaks often of the days when Tibet chose isolation over world connection but he notes that that is no longer wise or possible, because the world has become our home.
The Tibetan/Sherpa community has benefited greatly from the educational and health projects initiated by the beloved Sir Edmund Hillary. Today most young people receive at least some education but the need for ongoing and continued education for the young and old is still significant. The new Meditation/Teaching center could be a place to provide these teachings. This spiritual education is most certainly key to the preservation of culture, language and the Buddhist tradition of the region.
Culture is dynamic and ongoing. The Deboche convent, with a growing community of nuns who can live and prosper both spiritually and physically, would add a new, living culture that is not endangered by rapid change and migration toward metropolitan centers due to the isolation and limited local economic opportunities found in the Khumbu.
As we dream of this place of learning, practice and sharing we can also envision related environmental projects that would incorporate solar power to heat homes, harness hydro power, recycle trash for energy accumulated by seasonal visitors, develop ecologically sound designs for sanitary systems and provide programs to continue reforestation of the Everest region. With the innovative, eco-conscious designs created by Architects Without Borders the projects that will be undertaken at Deboche stand to be exemplary in all these critical areas.
We do not see why a growth of a spiritual community should not be married to a greater awareness and honor of this scared land, and the community that lives and calls this land home. With financial assistance from concerned foundations, corporate sponsors and compassionate individuals, Deboche can become this exemplar for such a green place of both human and spiritual pathways. It will become a catalyst for the preservation of the endangered Tibetan/Sherpa culture, the honor of threatened Himalayan heritage and the discipline of Buddhist spirit.
We are grateful for your consideration of this request, and look forward to speaking with you further, and to work with you to create a circle of resources around Deboche that will allow it to expand and deepen over time.
With kind regards,
Marcia Macdonald and the Deboche Project Team
















Recording a foot bridge. Recording a prayer boulder.

One of the Deboche convent houses which requires refurbishment. Team with Marcia MacDonald

Ani Nawang Pema, the oldest and most famous of the Deboche nuns, has been meditating for 50 years (Marcia MacDonald). Anis work in the kitchen preparing a meal around their wood cook stove (Marcia MacDonald)

Nuns making hot milk tea in the new kitchen provided by the Mount Everest Foundation. Nuns pose in the doorway of the convent (Justin Dickinson of the Big Umbrella).
